Carco.com.au Midland concept bundles family fun with 1000-plus used cars
By Anthony Discerni - Thursday, 9 March 2023
Carco.com.au concept bundles family fun with 1000-plus cars in a renovated Bunnings store
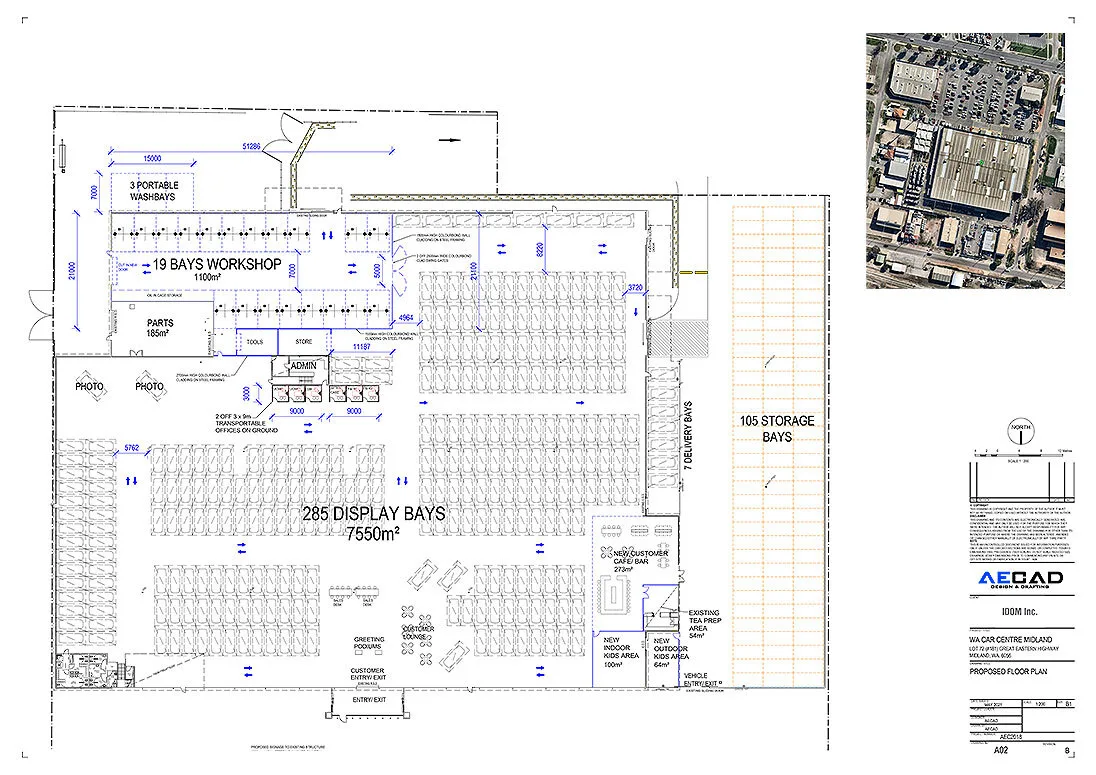
Used cars, a kids zone, a cafe and bar, indoor tracks for radio-controlled cars and a 19-bay workshop are some of the features headlining a multi-faceted dealership now under development in the eastern Perth suburb of Midland.
Built in and around a former Bunnings store, the concept is being funded and designed by national car dealership group IDOM.
IDOM’s dealer principal for its Midland City franchises, Daniel Davies, said the idea he developed came from appreciating that customers wanted to move around looking for cars as little as possible.
It was developed in conjunction with the dealer principals of IDOM’s adjoining franchise outlets in Midland, Troy Byfield and Clark Sewell.
“Most are also parents and so we saw the need to add a large cafe and a children’s area with a play area (that covers 491 square metres), access to video games and access to play with radio-controlled cars,” Mr Davies said.
“There are also plans for new car displays separated by glass from the used-car range of about 300 cars under 7550 square metres of roof.
“There are additional cars in the hardstand around the building and in IDOM dealerships a walk away either adjacent or across the road.”

Carco.com.au, which has parking for more than 100 customer cars, will be on display seven days a week and though it cannot sell cars on Sundays because of WA laws, people can see the range of vehicles.
Extra staff, including security staff, will be needed with Mr Davies saying he already has enough interest to staff the business.
“If you walk around from the building to the Kia, Hyundai, Nissan, Isuzu, Mitsubishi and Suzuki dealerships, you’ll see more than 1000 used cars,” he said.
“As a one-stop shop, we hope it really appeals to what the customer wants.
“People who come to a dealership want to buy a car but they also want to relax, see their kids comfortable and entertained. So that’s our aim.
“As far as I know, this hasn’t been done to this extent before,”he said.
The radio-controlled feature has an on-road and off-road track and is being prepared by a local club that will have access twice a week. At other times, the public can use the tracks or watch from a purpose-built mini-grandstand.

The cafe, which includes a licensed bar, will employ baristas for its coffee service – Mr Davies has already opened a coffee outlet on IDOM’s Midland City Kia site across the road. He said it became so popular he had to triple its barista staff.
The building has room for a 19-bay workshop that will be separated from the public and primarily used as a pre-delivery and warranty repair area.
IDOM is also looking at making space available for independent retailers in allied auto sectors such as 4WD equipment, tyres, mufflers and other accessory and equipment lines. It already has a supplier in a separate building within the Carco.com.au grounds.
IDOM, the Japanese-owned car dealer that entered Australia in 2015 after buying 67 per cent of WA’s DVG Group, will trial the concept before it initiates plans to expand.
Mr Davies said IDOM was right behind the concept and saw it as part of its organic growth in Australia.
The outlet, which is leased from Bunnings’ property company BWP, will cost IDOM “millions of dollars” to establish.
Mr Davies said this first Carco.com.au outlet was planned to open by October 1.
By Neil Dowling

